DHH 2.01
Zeitgemäßes Wohnen mit Wohlfühlfaktor
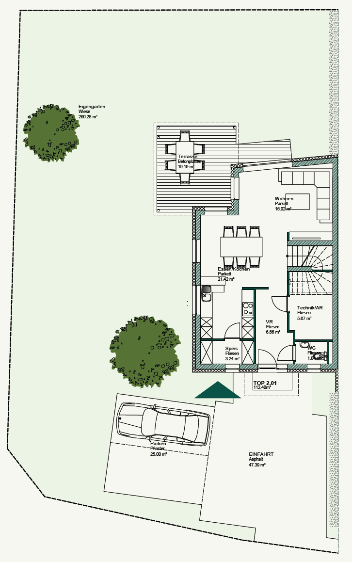
Die Doppelhaushälfte besticht durch klare Architektur, lichtdurchflutete Räume und eine harmonische Aufteilung. Terrasse und Garten laden zum Entspannen ein – perfekt für modernes Wohnen in ruhiger Lage.
Scrollen, um zu entdecken




Fordern Sie
jetzt Ihr Exposé an
Im Exposé erhalten Sie alle wichtigen Informationen zu Ihrer neuen Wohnmöglichkeit. Auf Wunsch vereinbaren wir gerne ein persönliches Beratungsgespräch, um Ihre individuellen Fragen zu klären.

WIR FREUEN UNS AUF IHRE ANFRAGE
Wir haben Ihr Interesse geweckt? Bitte klicken Sie auf jetzt Anfragen. Wir setzen uns mit Ihnen in Verbindung, um alle Details zu besprechen – selbstverständlich unverbindlich & vertraulich!







