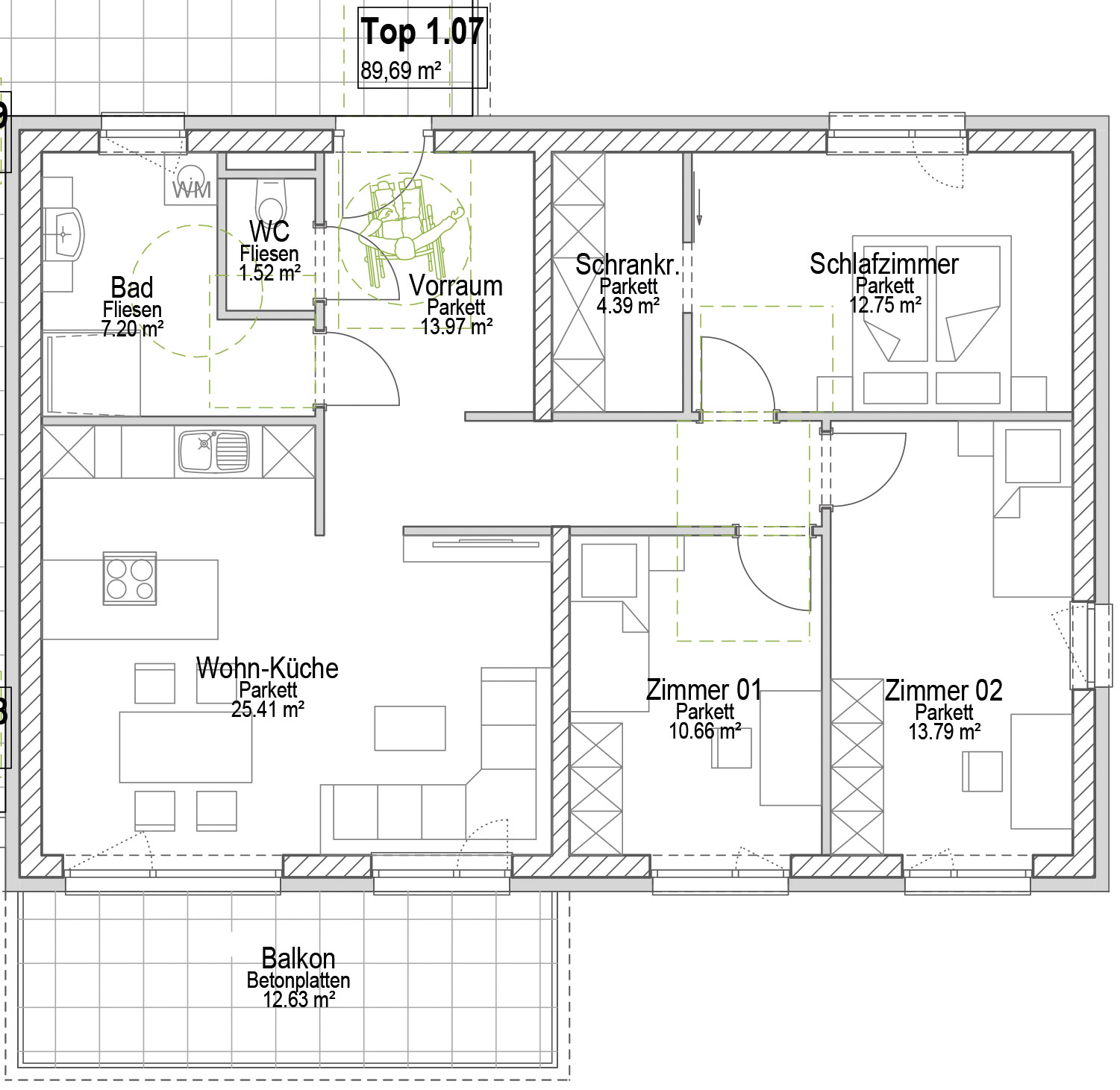
Top 1.07
Lichtdurchflutete Wohnung mit Balkon
Diese großzügige Wohnung im Obergeschoss bietet viel Platz für gemeinsames Erleben. Der weitläufige Wohnbereich öffnet sich zu einem sonnigen Balkon mit weitem Ausblick. Ein separater Schrankraum im Master-Bedroom und ein separates WC garantieren entspannten Komfort für die ganze Familie.
Scrollen, um zu entdecken




Fordern Sie
jetzt Ihr Exposé an
Im Exposé erhalten Sie alle wichtigen Informationen zu Ihrer neuen Wohnmöglichkeit. Auf Wunsch vereinbaren wir gerne ein persönliches Beratungsgespräch, um Ihre individuellen Fragen zu klären.

WIR FREUEN UNS AUF IHRE ANFRAGE
Wir haben Ihr Interesse geweckt? Bitte klicken Sie auf jetzt Anfragen. Wir setzen uns mit Ihnen in Verbindung, um alle Details zu besprechen – selbstverständlich unverbindlich & vertraulich!








