Top 3
Bürofläche mit Stil und Aussicht
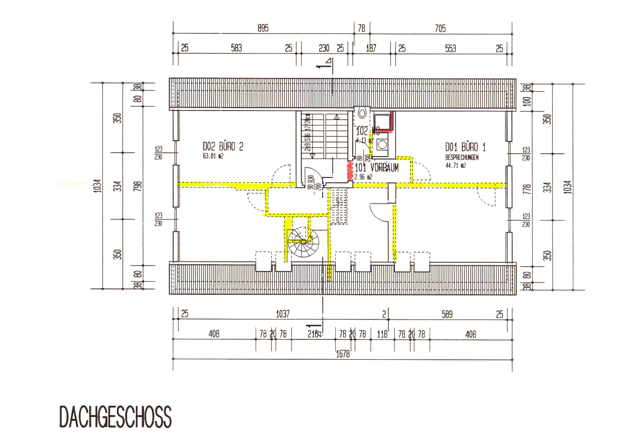
Repräsentatives Büro im Dachgeschoss mit ca. 110 m² Gesamtnutzfläche. Zwei großzügige Räume, heller Vorraum und Sanitärbereich bieten flexible Nutzungsmöglichkeiten für Büro oder Besprechung. Sofort bezugsfertig und zentral in Leibnitz gelegen.
Scrollen, um zu entdecken


Fordern Sie
jetzt Ihr Exposé an
Im Exposé erhalten Sie alle wichtigen Informationen zu Ihrer neuen Wohnmöglichkeit. Auf Wunsch vereinbaren wir gerne ein persönliches Beratungsgespräch, um Ihre individuellen Fragen zu klären.

WIR FREUEN UNS AUF IHRE ANFRAGE
Wir haben Ihr Interesse geweckt? Bitte klicken Sie auf jetzt Anfragen. Wir setzen uns mit Ihnen in Verbindung, um alle Details zu besprechen – selbstverständlich unverbindlich & vertraulich!


