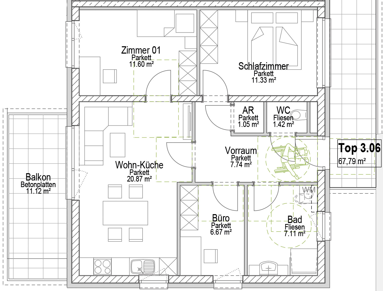
Top 3.06
Durchdachtes Wohnkonzept mit Balkon
Diese Wohnung überzeugt durch ihre funktionale Aufteilung inklusive eines separaten Büros. Der helle Wohn- und Essbereich bildet den Mittelpunkt und bietet Zugang zum Balkon. Ein ruhiges Schlafzimmer, ein zusätzliches Zimmer sowie ein praktischer Abstellraum runden das Angebot ab.
Scrollen, um zu entdecken




Fordern Sie
jetzt Ihr Exposé an
Im Exposé erhalten Sie alle wichtigen Informationen zu Ihrer neuen Wohnmöglichkeit. Auf Wunsch vereinbaren wir gerne ein persönliches Beratungsgespräch, um Ihre individuellen Fragen zu klären.

WIR FREUEN UNS AUF IHRE ANFRAGE
Wir haben Ihr Interesse geweckt? Bitte klicken Sie auf jetzt Anfragen. Wir setzen uns mit Ihnen in Verbindung, um alle Details zu besprechen – selbstverständlich unverbindlich & vertraulich!








