Gewerbegrundstücke mit Büro und Halle - Tillmitsch
Scrollen, um zu entdecken
Wohneinheiten
Größe
Zimmer
Gewerbegrundstück mit Gebäude – bestens angebunden an die A9
Technisch bestens erschlossenes Gewerbeareal mit Büro- und Hallengebäude. Großzügige Flächen, perfekte Infrastruktur und direkte Autobahnanbindung bieten ideale Voraussetzungen für moderne Betriebe.
Highlights dieses Projekts
- Gesamtfläche ca. 108.165 m², teilbar ab 30.000 m² – ideal für Gewerbe-, Logistik- oder Technikbetriebe.
- Widmung I1/GG (0,2–0,6) – vielseitige Nutzung für Industrie und Gewerbe möglich.
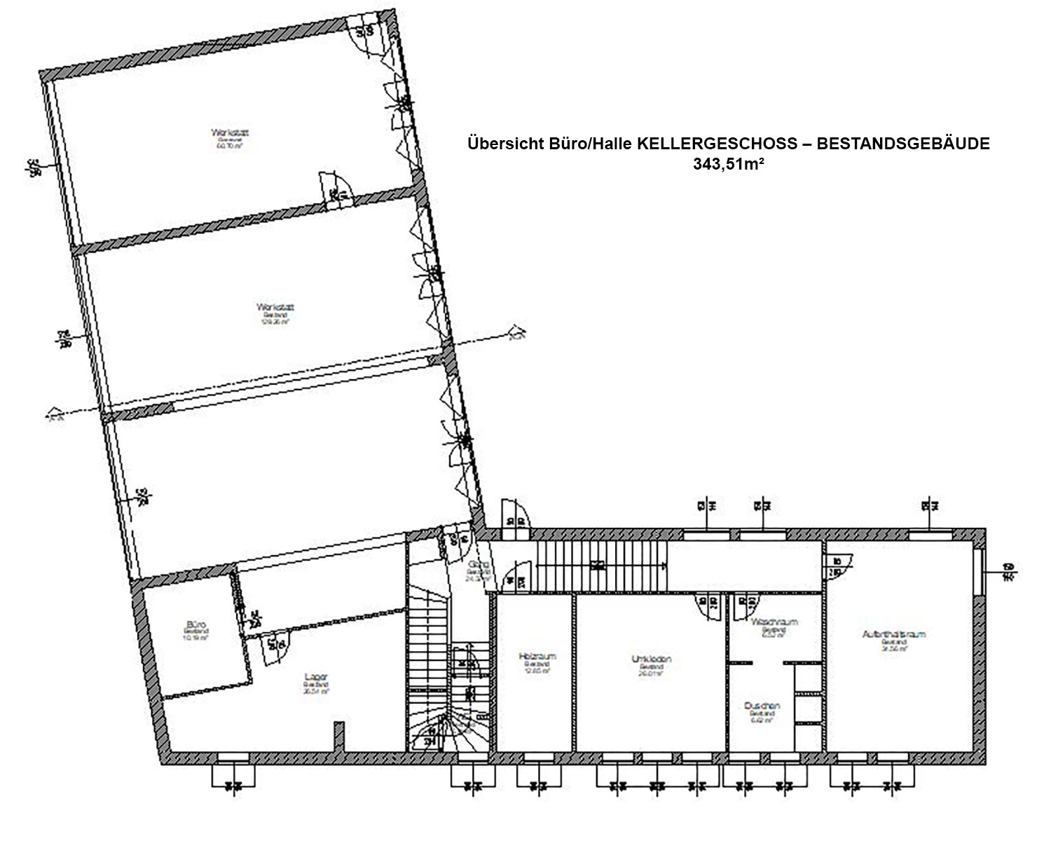
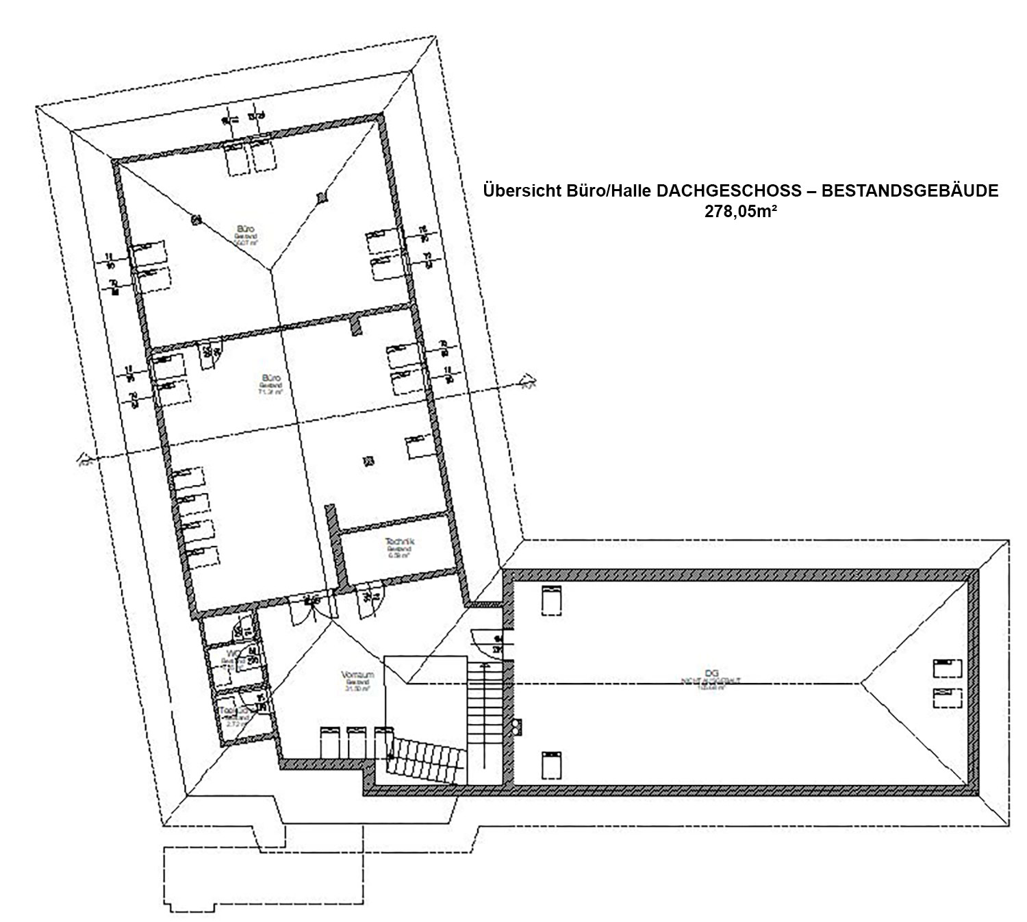
- Bestandsgebäude mit ca. 850 m² Nutzfläche, bestehend aus Büro-, Lager- und Technikbereichen.
- Voll erschlossen: Kanal, Wasser, Glasfaser, Telefon und Stromversorgung über angrenzende Trafostation.
- Optimale Verkehrsanbindung zur A9 (Auf-/Abfahrt Lebring 4 km, Gralla 5 km) mit zwei Abbiegespuren und geplantem Kreisverkehr.
- Aufgeschüttetes Baugelände auf Straßenniveau gemäß Wasserrechtsbescheid – sofort bebaubar.
- Zentrale Lage zwischen Tillmitsch und Leibnitz in einem dynamischen Wirtschaftsraum der Südsteiermark.
- Flexibel teil- und kombinierbare Flächen für individuelle Unternehmensanforderungen.
Kategorie

Projektadresse



Baustart

Baustart

Fertigstellung

in diesem Projekt
Noch ? von ? Einheiten verfügbar
Gartenwohnungen
Balkonwohnungen
Penthouse
Doppelhaushälften
Reihenhäuser
Gewerbeimmobilien

Top-Standort im Süden der Steiermark
Der Gewerbepark Tillmitsch liegt in einer der wirtschaftlich dynamischsten Regionen der Südsteiermark, nur wenige Minuten von Leibnitz entfernt. Die Liegenschaft profitiert von einer hervorragenden Verkehrsanbindung: Die A9 Phyrn-Autobahn ist über die Auf- und Abfahrten Lebring (4 km) und Gralla (5 km) rasch erreichbar und ermöglicht eine optimale Anbindung an Graz, Slowenien und den gesamten Alpen-Adria-Raum.
Zwei Abbiegespuren direkt zur Liegenschaft sowie ein geplanter Kreisverkehr am Heidenwaldweg sorgen für eine sichere und komfortable Zufahrt. Der Standort ist vollständig erschlossen und bietet Anschlüsse für Kanal, Wasser, Glasfaser, Telefon und Strom.
Die zentrale Lage zwischen Tillmitsch und Leibnitz, kombiniert mit der Nähe zu internationalen Verkehrsachsen, macht den Standort ideal für Produktion, Logistik, Technologie und Gewerbe. Das attraktive Umfeld mit stetig wachsender Infrastruktur bietet langfristige Perspektiven für Unternehmen mit Expansionsplänen.
Lage & Infrastruktur

Neuigkeiten zu diesem Projekt
Weitere aktuelle Projekte
Weitere aktuelle Projekte
Weitere aktuelle Projekte




Fordern Sie
jetzt Ihr Exposé an
Im Exposé erhalten Sie alle wichtigen Informationen zu Ihrer neuen Wohnmöglichkeit. Auf Wunsch vereinbaren wir gerne ein persönliches Beratungsgespräch, um Ihre individuellen Fragen zu klären.

WIR FREUEN UNS AUF IHRE ANFRAGE
Wir haben Ihr Interesse geweckt? Bitte klicken Sie auf jetzt Anfragen. Wir setzen uns mit Ihnen in Verbindung, um alle Details zu besprechen – selbstverständlich unverbindlich & vertraulich!





















